Leicht und schwer

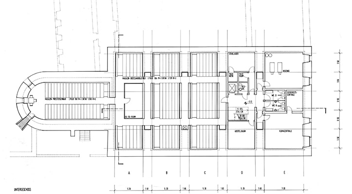
Einbau des Diözesanmuseums Rottenburg in die ehemalige Klosterkirche des Karmeliterordens, die seit der Säkularisierung gewerblich genutzt und mehrfach umgebaut wurde.
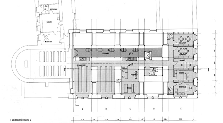
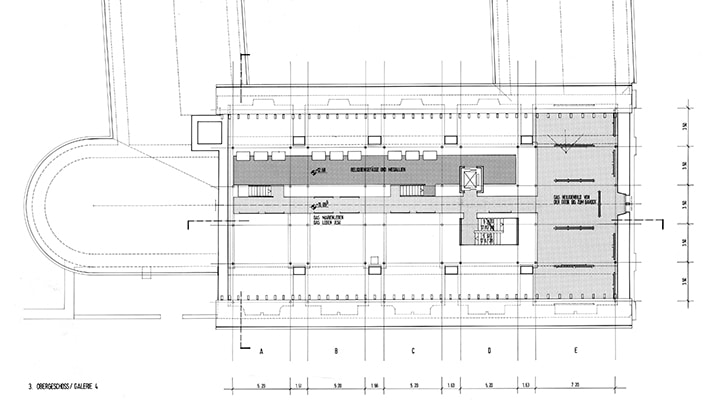
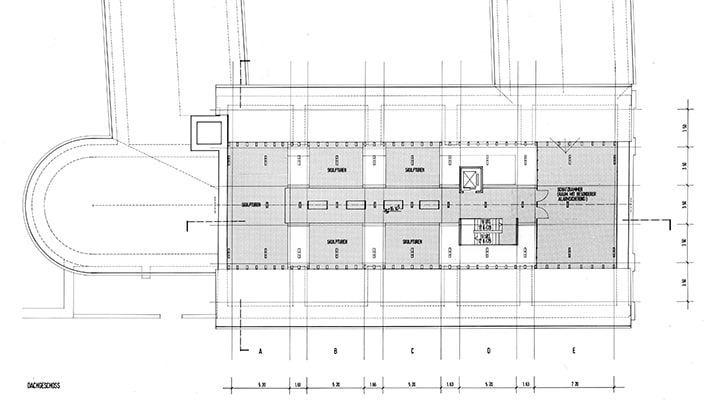
Freilegen des ursprünglich barocken Kirchenraumes und Implementierung eines selbsttragenden filigranen Stahlgerüstes für die neue, offen über mehrere Geschosse entwickelte Nutzung. Die geometrische Ordnung der neuen Stahlkonstruktion orientiert sich an den strukturellen Vorgaben des vorgefundenen Massivbaus (Joche, Fensteröffnungen) und verdeutlicht so die Struktur und Geschichte des historischen Kirchenraumes, ohne ihre eigene neuzeitliche Identität zu verleugnen.

Auszeichnung

Wettbewerb / 3. Preis

Projekt

Diözesanmuseum
Karmeliterstraße, Rottenburg

Planung

Clemens Richarz

1 / 10