Baulücke

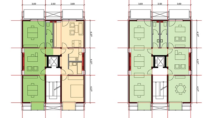
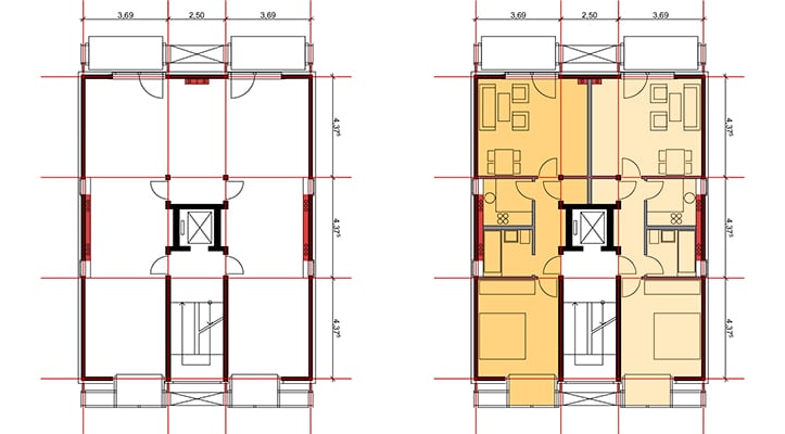
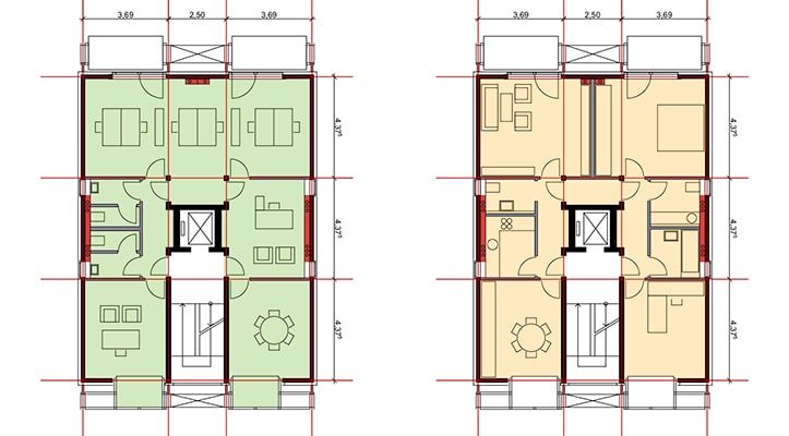
Neubau eines flexibel nutzbaren Gebäudes in Stuttgart-West, ein Stadterweiterungsgebiet des 19. Jahrhunderts. Reduktion der tragenden Bauteile und Optimierung der Versorgungsstruktur, um die extrem schmale und bisher unbebaute Baulücke sinnvoll nutzen zu können.
Interpretation der typischen Merkmale des Bestandes (straßenseitige Erker, hofseitige Balkone) mit zeitgemäßen Materialien und Baumethoden.

Auszeichnungen

Deutscher Architekturpreis 1993 / Anerkennung
Auszeichnung guter Bauten 1994 (BDA B-W)
Architekturpreis Wüstenrot-Stiftung 1995 / Lobende Erwähnung

Veröffentlichungen

Projekt

Wohn- und Geschäftshaus
Claudiusstraße, Stuttgart

Planung

Clemens Richarz mit Christina Schulz

1 / 10